關於我們 About Us
案例呈現 Portfolio
服務說明 Service
聯絡我們 Contact Us
© 2022 HOUHAI INTERIOR DESIGN
回上一層
住宅空間 Residential
商業空間 Commercial
關閉
0
共
0
件商品
總計
NT$
0
前往結帳
✕
會員登入
登 入
忘記密碼?
建立專屬帳號
只要再完成幾個步驟,即可完成帳號的註冊程序,
我 要 註 冊
首頁
案例呈現 Portfolio
商業空間 Commercial
長緣髮型設計
Scroll Down
2020
‧
11
-
22
長緣髮型設計
商業空間 Commercial
住宅空間 Residential
03 - 16 ‧ 2021
親家M3 Y宅
上一則
商業空間 Commercial
08 - 14 ‧ 2020
立花壽司
下一則
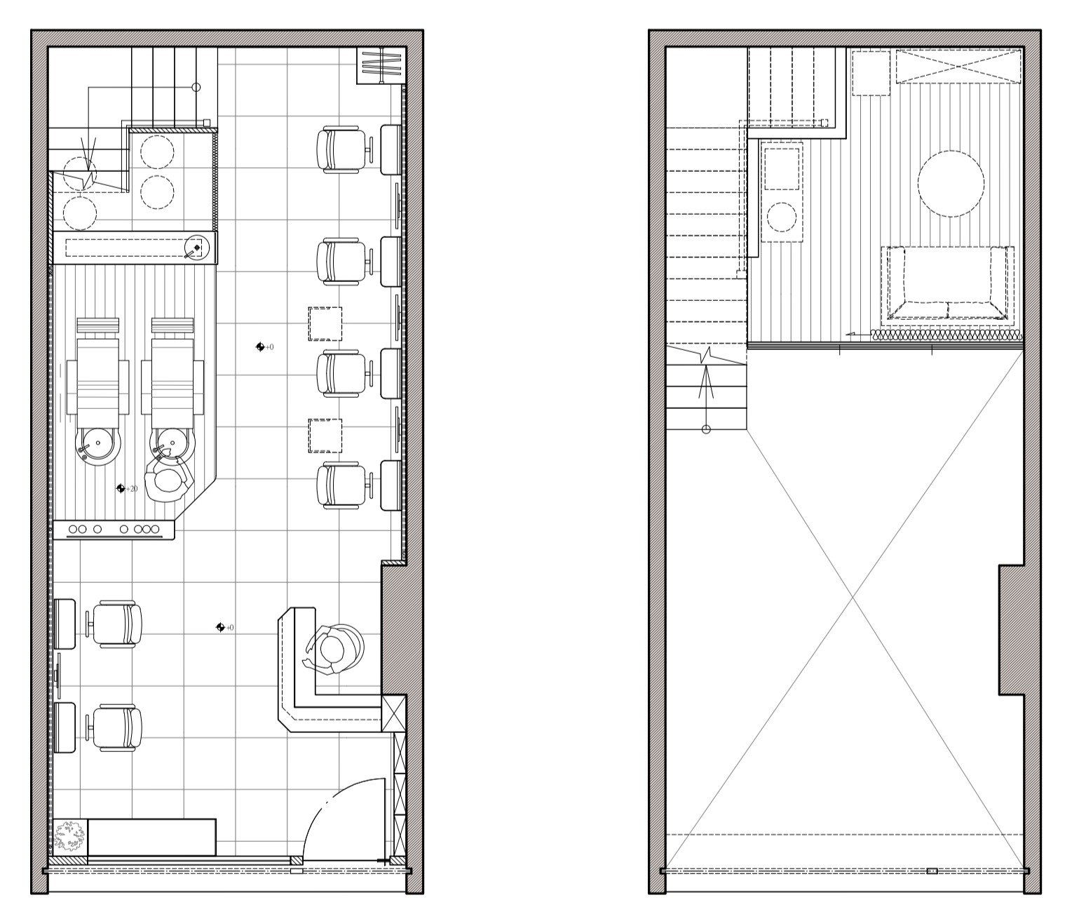
延續服務使命的美麗傳承
設計坪數:18 (衛浴除外) 格局:長向樓店
店家在地經營20年,希望藉由更新裝修,來增強同仁的工作機能,也提供新舊顧客亮麗的嶄新氛圍。
我們從原先的建築材質與條件,延伸本來的設備與色系做參考,以簡潔設計與人因工程重新解構空間,讓動線與收納比以往加分。
藉由開放層架寄存顧客髮品,可輕易拿取與收納之外,也形成梯下備品區的屏扇效果
。
回上一頁
住宅空間 Residential
03 - 16 ‧ 2021
親家M3 Y宅
上一則
商業空間 Commercial
08 - 14 ‧ 2020
立花壽司
下一則