關於我們 About Us
案例呈現 Portfolio
服務說明 Service
聯絡我們 Contact Us
© 2022 HOUHAI INTERIOR DESIGN
回上一層
住宅空間 Residential
商業空間 Commercial
關閉
0
共
0
件商品
總計
NT$
0
前往結帳
✕
會員登入
登 入
忘記密碼?
建立專屬帳號
只要再完成幾個步驟,即可完成帳號的註冊程序,
我 要 註 冊
首頁
案例呈現 Portfolio
住宅空間 Residential
茂美洋瑞美 W宅
Scroll Down
2022
‧
09
-
16
茂美洋瑞美 W宅
住宅空間 Residential
住宅空間 Residential
09 - 20 ‧ 2022
鉅虹水岸岩 L宅
上一則
住宅空間 Residential
03 - 07 ‧ 2022
雙橡園1812 H宅
下一則
風和日暖的靜好日常
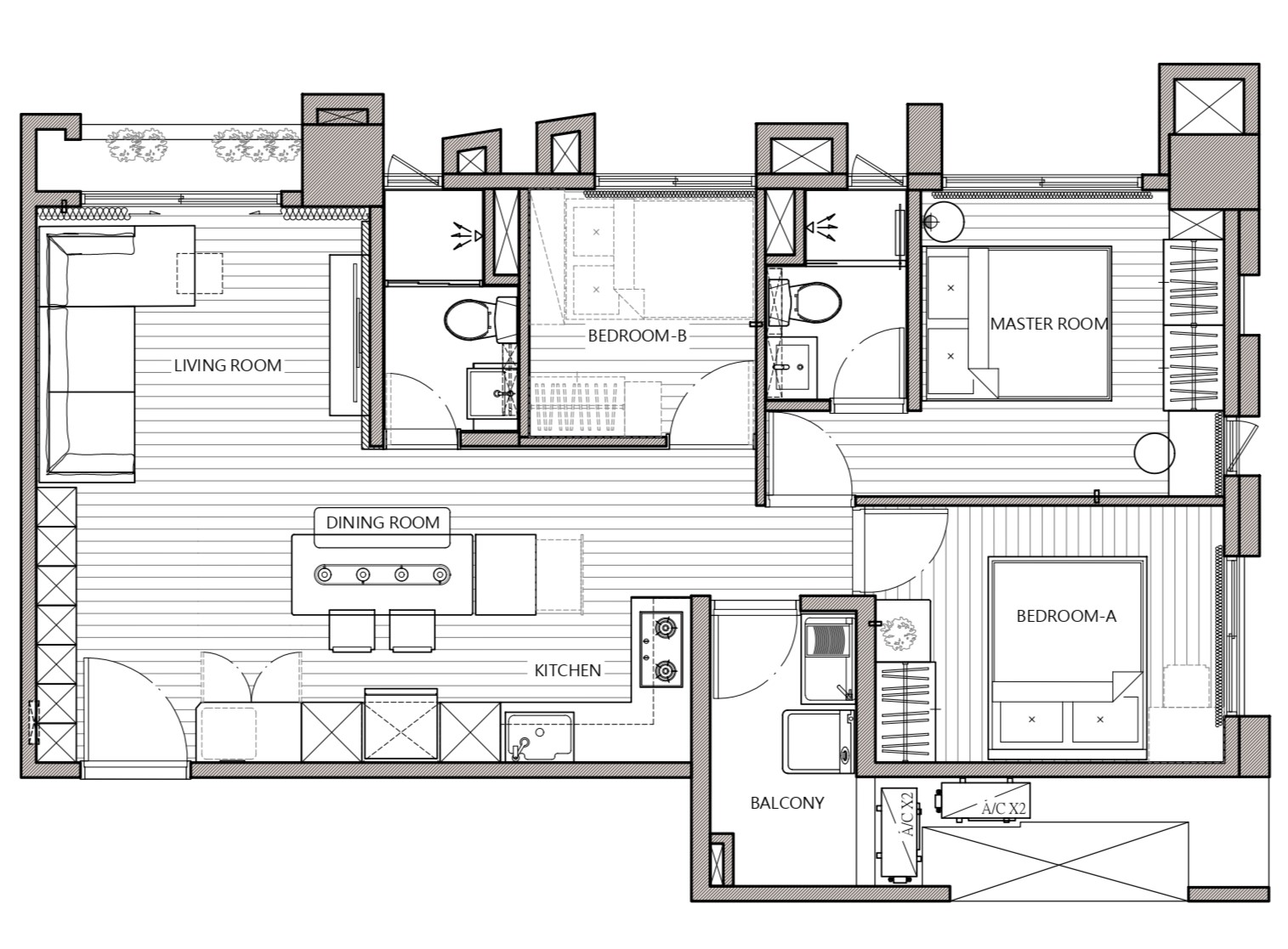
設計坪數:16 (工作間、衛浴除外) 格局:3房2廳
本住宅在客變階段已先進行格局的變更,以符合屋主們擺放中島、與餐廚區連動關係的需求,走道區也規劃了隱藏門扇,賦予空間一致清爽的整體感。
簡約的天花板造型中,配合大面落地窗光線照入室內,在客餐廳兩側設計了下墜圓弧,讓視覺進而延伸整體空間的潔淨純白。
居住成員是一對夫妻加上兩隻愛貓,屋主夫妻希望貓咪在新家也有舒適的飼育環境,因此我們除了在公共區域融入相關設備的收納,給水飼料機的檯面,或是通往櫃內貓砂機的圓洞,也都考量了貓咪的身體尺寸,以貼切毛小孩在屋內活動時的舒適性。
日系簡約的風格,是屋主嚮往的居家舒適感,於是我們在大量使用橡木原色與淺色的基調中,去構築日常使用的收納與機能使用。
通往工作間與客浴的隱藏門扇,增加了風格的整體感。
主臥室區域連貫淺色基調,並搭配調節光線的木百業窗,在柔和空間裡讓光影多一絲變化。
回上一頁
住宅空間 Residential
09 - 20 ‧ 2022
鉅虹水岸岩 L宅
上一則
住宅空間 Residential
03 - 07 ‧ 2022
雙橡園1812 H宅
下一則